인터록 시스템: 램프 상태를 나타내는 내부 센서;
안티 스킵 플랫폼; 플랫폼 옵션: 알루미늄 바둑판 또는 검은 색 미끄럼 방지 커버;
사용하지 않을 때 바닥과 평평한;
보기, 접근 및 비상구를 방해하지 않습니다.
최대 적재 용량: 350Kg;
가볍고 두껍고 높은 내식성;
쉬운 가동을 위한 손잡이.

기술 사양:
| 최대 적재 용량 | 350Kg |
| 플랫폼 옵션 | 알루미늄 바둑판 또는 검은 색 미끄럼 방지 덮개 |
| 자신의 무게 | 27.5 kg |
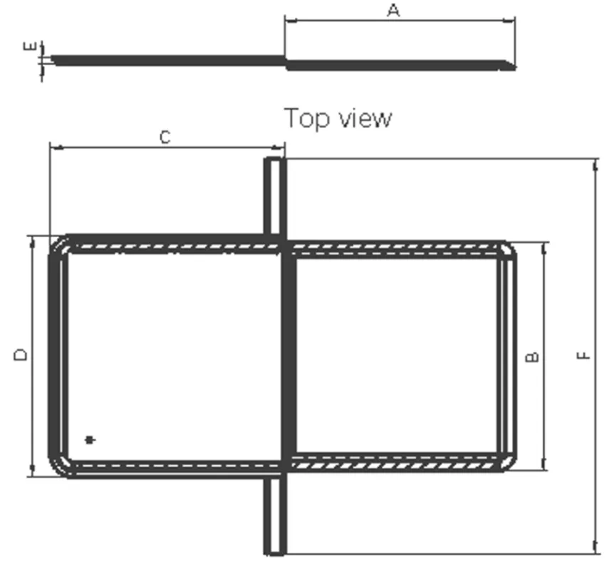
매개 변수 (단위: mm)
| 모델 | 플랫폼 그물 길이 A | 플랫폼 그물 폭 B | 전체 길이 C | 장착 기본 폭 D | 두께 E | 전반적인 폭 F (조정 가능) |
| FMWR-1A(850*920) | 850 | 920 | 897 | 966 | 22.5 | 1500 |