사용하지 않을 때는 눈에 띄지 않고 방해를받습니다.
보관할 때보기, 접근 및 비상구를 방해하지 않습니다.
작업 중 경고 소리;
비상 사태를위한 수동 백업 기능;
도어 인터록 기능;
내부 안전 잠금 장치;
기계적 자동 롤 정지;
미끄럼 방지 플랫폼;
강력한 유압 펌프는 부드럽고 안정적인 움직임을 보장합니다.
측면 난간 (옵션) 편안함과 보안을 향상시킵니다.

기술 사양:
| Volatge | 12Vdc 또는 24Vdc |
| 힘 | 800W |
| 적재 용량 | 300kg |
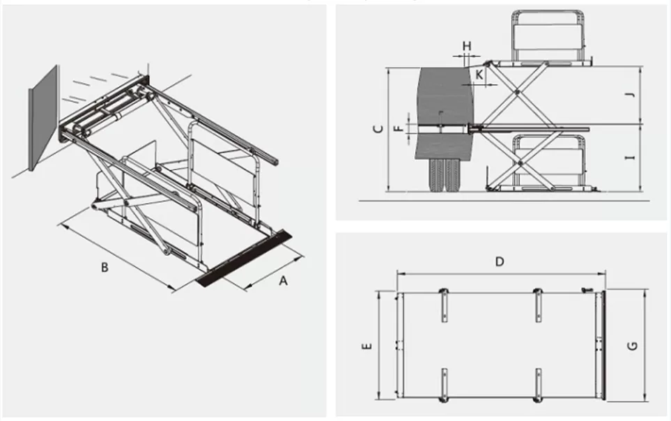
매개 변수 (단위: mm)
| 모델 | 플랫폼 그물 폭 A | 플랫폼 그물 길이 B | 플랫폼 그물 높이 C | 총 길이 D | 총 폭 E | 장착 두께 F | 문 그물 폭 G | 중첩 크기 H | 다운 스트로크 I | 업 스트로크 J | 갭 k |
| UVL-700II | 750 | 1220 | 890 | 1896 | 1134 | 135 | ≥ 1100 | 50 | 200-570 | 250-320 | ≥ 50 |
| UVL-700II-800 | 800 | 1220 | 890 | 1896 | 1184 | 135 | ≥ 1100 | 50 | 200-570 | 250-320 | ≥ 50 |
| UVL-1300II | 750 | 1295 | 1455 | 1971 | 1134 | 135 | ≥ 1100 | 50 | 200-790 | 250-665 | ≥ 50 |
| UVL-1300II-800 | 800 | 1295 | 1455 | 1971 | 1184 | 135 | ≥ 1100 | 50 | 200-790 | 250-665 | ≥ 50 |
| UVL-1600II-H | 750 | 1445 | 1850 | 2168 | 1184 | 135 | ≥ 1100 | 50 | 200-910 | 400-940 | ≥ 50 |